
1/22
請注意,上方物件照片如有街景,為物件附近環境介紹,非物件本身。
1/22
有247人也在關注這間👀
本案專家

預約看屋
按下送出表示您已同意本站
服務條款
與隱私權聲明
送出
有247人也在關注這間👀
詳情
總價
199萬
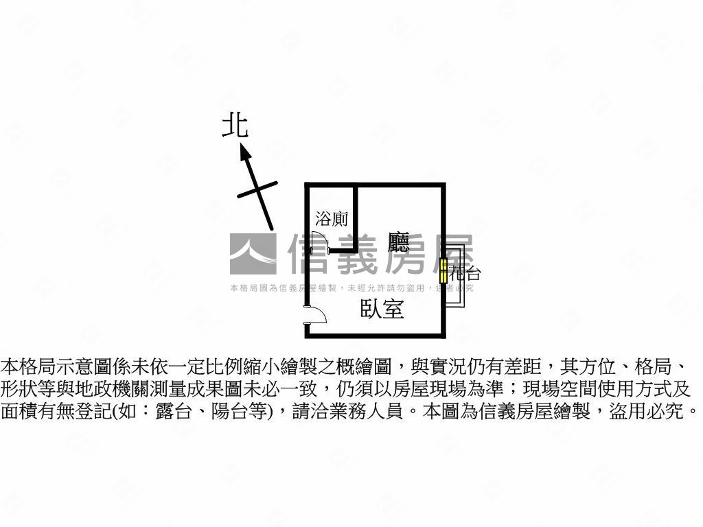
格局
1房1廳1衛
建坪
7.55坪
(主建物5.17坪)
類型
大樓
樓層
9樓/16樓
建坪單價
26.36 萬/坪
屋齡
30.4年
地坪
0.98坪
地坪單價
--

SinyiCare十大守護 信義房屋購售屋服務保障

點擊觀看生活機能
捷運 (2)公車 (14)公共自行車 (2)停車場 (1)
0四維國小站 - 出口
10.5分鐘 / 754m
1文心崇德站 - 出口
15.4分鐘 / 1113m
0四維國小站 - 出口
10.5分鐘 / 754m
1文心崇德站 - 出口
15.4分鐘 / 1113m

SinyiCare十大守護 信義房屋購售屋服務保障
建坪
7.55坪
詳情
建坪單價
26.36 萬/坪
地坪
0.98坪
主建物
5.17坪
共有部份
2.16坪
花台
0.23坪
格局
1房1廳1衛
加蓋格局
--
屋齡
30.4年
類型
大樓
樓層
9樓/16樓
車位
--
邊間/暗房
否/否
建物朝向
東
大門朝向
西
落地窗朝向
東
警衛管理
全天候
管理費
340 元/月
建物詳情
建物結構
鋼筋混凝土
外牆建材
方塊磚
每層戶數
6
謄本用途
住家用
使用分區
第二種住宅區;
注意事項
--
收合
物件特色
收租自用優選
周遭生活機能佳
採光通風好
低總價好入手
地點優質交通便利
近捷運站步行約10分
近大連、崇德商圈
買方服務費成交價1%
類似物件實價登錄(88)
距離該物件1公里內,半年內成交,大樓
共有88間與我相似的實價登錄物件
編輯篩選條件
列表
地圖
年月
地址
類型/車位
總價
單價
建坪
地坪
屋齡
樓層
格局
550萬
28.65萬/坪
建坪19.2坪地坪2.24無車位
2房1廳1衛30.1年2樓/16樓
2房1廳1衛30.1年2樓/16樓
備註資訊:車位壹個位於第下三層編號29號親友、員工、共有人或其他特殊關係間之交易;
480萬
含車位價
19.93萬/坪
含車位計算
建坪24.09坪(含車位--坪)地坪2.25有車位
2房1廳1衛29.3年12樓/16樓
2房1廳1衛29.3年12樓/16樓
交易備註
- 資料來源:
為信義房屋最新成交行情;
為內政部最新公布的實價登錄資料;
該數值為系統運算,詳細請看說明
- 本實價登錄分類係綜合內政部實價登錄2020年7月之建物型態分類調整,以及申報登錄之建物型態、建物權狀登載之「主要用途」資料推估而成,故資料呈現類型、順序可能會與內政部不動產交易實價查詢服務網之搜尋結果有所差異,請斟酌參考。看看我們如何推估實價登錄類型與順序
- 特殊行情物件可能為受到特別條件或特殊關係影響所造成,詳情請參考頁面之粉色「備註資訊」欄。排除特殊交易功能,開啟後可即時排除顯示申報備註中關係人間交易、特殊交易情況及標的類型、與政府有關之交易、僅車位交易、分件登記、含多筆土地或多棟建物、 交易標的僅有建物、土地面積為0(含地上權物件),及其他備註資訊,關閉後則會恢復顯示。
- 歷史移轉次數依據信義成交行情及政府實價登錄資訊推估,再由系統比對當筆與前一筆實價登錄,交易明細完全吻合方計算漲跌幅,當筆交易漲跌幅計算式為(當筆交易之成交總價/前一筆交易之成交總價)-1,計算百分比至小數點後兩位;可能與實際交易有所落差,資料請斟酌參考。
為信義房屋最新成交行情;- 本實價登錄分類係綜合內政部實價登錄2020年7月之建物型態分類調整,以及申報登錄之建物型態、建物權狀登載之「主要用途」資料推估而成,故資料呈現類型、順序可能會與內政部不動產交易實價查詢服務網之搜尋結果有所差異,請斟酌參考。看看我們如何推估實價登錄類型與順序
- 特殊行情物件可能為受到特別條件或特殊關係影響所造成,詳情請參考頁面之粉色「備註資訊」欄。排除特殊交易功能,開啟後可即時排除顯示申報備註中關係人間交易、特殊交易情況及標的類型、與政府有關之交易、僅車位交易、分件登記、含多筆土地或多棟建物、 交易標的僅有建物、土地面積為0(含地上權物件),及其他備註資訊,關閉後則會恢復顯示。
- 歷史移轉次數依據信義成交行情及政府實價登錄資訊推估,再由系統比對當筆與前一筆實價登錄,交易明細完全吻合方計算漲跌幅,當筆交易漲跌幅計算式為(當筆交易之成交總價/前一筆交易之成交總價)-1,計算百分比至小數點後兩位;可能與實際交易有所落差,資料請斟酌參考。
查看實價登錄
本案專家

根據你的設定值計算
10,105/月


