
請注意,上方物件照片如有街景,為物件附近環境介紹,非物件本身。
1/21
有79人也在關注這間👀
本區專家
本案專家
更多挑選
按下按鈕表示您已同意本站
服務條款
與隱私權聲明
預約看屋
中山北路鐫豊店王
(2803WC)
台北市中山區中山北路一段
有79人也在關注這間👀
總價
11,500萬
建坪單價
219.55 萬/坪
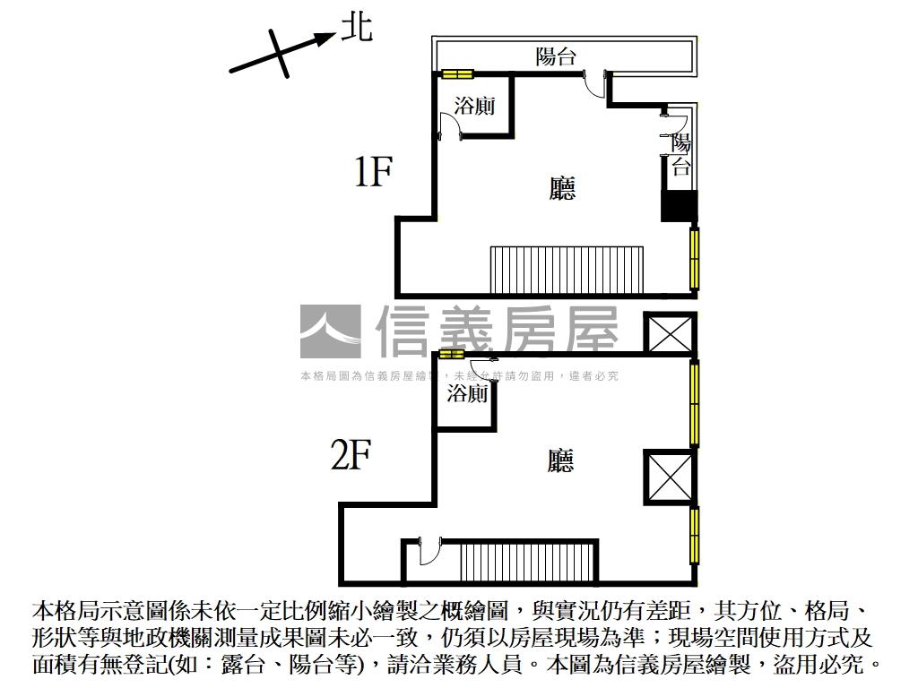
格局
2廳2衛
房貸試算
計算
元/月
年|利率%概算|undefined年寬限期
符合首購資格嗎?
坪數詳情
細項
建坪52.38
主+陽41.06
地坪5.64
類型店面/大樓
屋齡2.5年
樓層1-2樓/23樓
管理費
約5,762 元/月
加蓋格局--
謄本用途見注意事項
使用分區第三種商業區;
完整物件詳情
本區專家
本案專家
更多挑選
物件特色
中山北路店面
中山北路金雞母
大陸建設知名品牌
稀有釋出優質店面
文武百業置產好案
近台北車站中山捷運站
華山藝文特區
中山北路官道
周邊生活機能


SinyiCare十大守護 信義房屋購售屋服務保障
點擊觀看生活機能
捷運 (24)
公車 (28)
公共自行車 (6)
停車場 (17)
0台北車站 - 出口M2
7.1分鐘 / 445m
1中山站 - 出口2
8.7分鐘 / 575m
2中山站 - 出口3
9.2分鐘 / 591m
3中山站 - 出口1
8.6分鐘 / 569m
4台北車站 - 出口M1
8.6分鐘 / 558m
5善導寺站 - 出口1
8.6分鐘 / 607m
6中山站 - 出口4
9.6分鐘 / 619m
7善導寺站 - 出口2
9.7分鐘 / 635m
8台北車站 - 出口M7
9.9分鐘 / 644m
9善導寺站 - 出口3
10.8分鐘 / 708m
A中山站 - 出口5
10.7分鐘 / 705m
B中山站 - 出口6
10.7分鐘 / 730m
C台北車站 - 出口M3
11.2分鐘 / 746m
D善導寺站 - 出口6
11.4分鐘 / 804m
E台北車站 - 出口M4
11.2分鐘 / 740m
F善導寺站 - 出口4
12.2分鐘 / 805m
G善導寺站 - 出口5
12.6分鐘 / 835m
H台北車站 - 出口M8
12.8分鐘 / 805m
I台北車站 - 出口M6
13.5分鐘 / 851m
J台北車站 - 出口M5
12.9分鐘 / 868m
K台大醫院站 - 出口3
17.4分鐘 / 1160m
L台大醫院站 - 出口4
17.8分鐘 / 1178m
M雙連站 - 出口1
16.5分鐘 / 1137m
N雙連站 - 出口2
17.1分鐘 / 1169m
0台北車站 - 出口M2
7.1分鐘 / 445m
1中山站 - 出口2
8.7分鐘 / 575m
2中山站 - 出口3
9.2分鐘 / 591m
3中山站 - 出口1
8.6分鐘 / 569m
4台北車站 - 出口M1
8.6分鐘 / 558m
完整周邊生活圈


SinyiCare十大守護 信義房屋購售屋服務保障
類似物件實價登錄
(64)
1公里內 | 半年內 | 店面/大樓
3房2廳3衛
|66.08坪
|有車位
8,680萬149.25萬/坪
115/02成交
3房2廳3衛
|66.08坪
|有車位
8,680萬149.25萬/坪
115/02成交


