
請注意,上方物件照片如有街景,為物件附近環境介紹,非物件本身。
1/22
有506人也在關注這間👀
本案專家
更多挑選
按下按鈕表示您已同意本站
服務條款
與隱私權聲明
預約看屋
有506人也在關注這間👀
總價
1,688萬
1,788萬
含車位價
建坪單價
本物件含車位,詳洽經紀人員
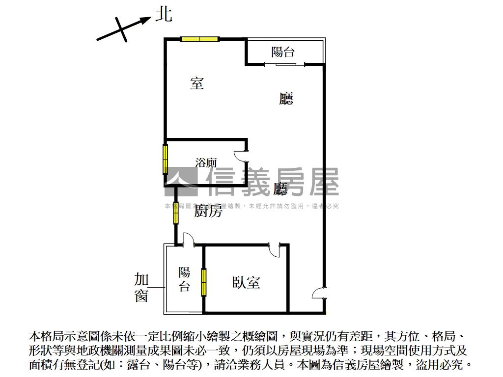
格局
1房2廳1衛1室
房貸試算
計算
元/月
年|利率%概算|undefined年寬限期
符合首購資格嗎?
坪數詳情
細項
建坪35.98
主+陽18.1
地坪6.86
類型大樓
屋齡3.7年
樓層7樓/14樓
管理費
約2,849 元/月
加蓋格局--
謄本用途集合住宅
使用分區鄉村區乙種建築用地;
完整物件詳情
本案專家
更多挑選
物件特色
自然採光極佳
廁所開窗
遠眺美景視野佳
網路預約專人服務
屋主用心裝潢惜售
適合首購單身小家庭
近68快速道路
機能交通皆便利
周邊生活機能


SinyiCare十大守護 信義房屋購售屋服務保障
點擊觀看生活機能
公車 (3)
公共自行車 (1)
停車場 (1)
0長壽會館
7.3分鐘 / 503m
1金竹路
7.5分鐘 / 514m
2荷蘭村
10.3分鐘 / 712m
0長壽會館
7.3分鐘 / 503m
1金竹路
7.5分鐘 / 514m
2荷蘭村
10.3分鐘 / 712m


SinyiCare十大守護 信義房屋購售屋服務保障
類似物件實價登錄
(30)


